Impressive seafront villa for 20 guests
(1)
El Campello, Coveta Fumá, El Campello, El Campello
El Campello, , Coveta Fumá, El Campello, El Campello
-First-line seafront villa with direct sea access
-Heated private swimming pool (30ºC upon request)
-8 bedr., 7 bathr., accomm. up to 20 guests
-Air- conditioning
-Indoor and outdoor kitchen with gas barbecue
-Ping pong table
-Garage for 2 cars, additional parking on the property
-Bed linen, towels, and beach towels included
-High chairs and cots upon request free of charge
-Tram stop (Cala Piteres) 900m (max. 14 min. on foot), connection Alicante/Benidorm
-Supermarket/Restaurants 1.8 km or one tram stop (Coveta Fuma)
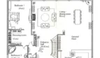
Walking into Villa Leandro, you will find on the ground floor the entrance leading to a spacious living and dining area with an American kitchen, guest toilet, and one bedroom (bed: 200×200 cm) with an en suite bathroom. A large covered terrace provides direct access to the outdoor kitchen and dining area with gas barbecue, as well as the swimming pool area.
On the first floor, there are three generously sized bedrooms (beds: 150×200 cm, 160×200 cm, 150×190 cm, plus two 90×190 cm beds), each with an en suite bathroom. The second floor features a cozy sitting area with a large terrace, perfect for relaxation and enjoying the sea breeze.
The semi-basement hosts 4 bedrooms which have a 180x200cm bed, three 150x200cm beds and an 80x200cm pull-out bed and 3 bathrooms. A spacious garage is also located here, including a Ping Pong table for entertainment.
Two extra beds can be arranged at a cost of €90 per unit per stay.
Towels, sheets, and beach towels are provided, and high chairs and baby cots are available free of charge upon request.
The swimming pool can be heated during the winter season for €220 per week (approx. 30 °C).
– Tram station (Cala Piteres) to El Campello, Alicante/ Benidorm, Denia: approx. 900 m (max. 14 min on foot)
– Supermarket and restaurants in Coveta Fuma: approx. 1.8 km (3 min drive) or by tram to the next station (Coveta Fuma)
– Coastal city El Campello: approx. 6 km (10 min drive)
– Alicante (capital of Costa Blanca): approx. 20 km (20 min drive)
– Alicante Airport: approx. 30 km (30 min drive)
Normal electricity consumption of 150 kWh/day is included. Any higher consumption will be charged an additional €0.20/kWh. A €500 deposit will be charged on-site via credit card for electricity consumption.
| M | T | W | T | F | S | S |
|---|---|---|---|---|---|---|
| 1 € 750 | 2 € 750 | 3 € 750 | 4 € 750 | 5 € 750 |
||
| 6 € 750 | 7 € 750 | 8 € 750 | 9 € 750 | 10 € 750 | 11 € 750 | 12 € 750 |
| 13 € 750 | 14 € 750 | 15 € 750 | 16 € 750 | 17 € 750 | 18 € 750 | 19 € 750 |
| 20 € 750 | 21 € 750 | 22 € 750 | 23 € 750 | 24 € 750 | 25 € 750 | 26 € 750 |
| 27 € 750 | 28 € 750 | 29 € 750 | 30 € 750 |
|||
| M | T | W | T | F | S | S |
|---|---|---|---|---|---|---|
| 1 € 750 | 2 € 750 | 3 € 750 |
||||
| 4 € 750 | 5 € 750 | 6 € 750 | 7 € 750 | 8 € 750 | 9 € 750 | 10 € 750 |
| 11 € 750 | 12 € 750 | 13 € 750 | 14 € 750 | 15 € 750 | 16 € 750 | 17 € 750 |
| 18 € 750 | 19 € 750 | 20 € 750 | 21 € 750 | 22 € 750 | 23 € 750 | 24 € 750 |
| 25 € 750 | 26 € 750 | 27 € 750 | 28 € 750 | 29 € 750 | 30 € 750 | 31 € 750 |
| M | T | W | T | F | S | S |
|---|---|---|---|---|---|---|
| 1 € 813 | 2 € 813 | 3 € 813 | 4 € 813 | 5 € 813 | 6 € 813 | 7 € 813 |
| 8 € 813 | 9 € 813 | 10 € 813 | 11 € 813 | 12 € 813 | 13 € 813 | 14 € 813 |
| 15 € 813 | 16 € 813 | 17 € 813 | 18 € 813 | 19 € 813 | 20 € 813 | 21 € 813 |
| 22 € 813 | 23 € 813 | 24 € 813 | 25 € 813 | 26 € 813 | 27 € 813 | 28 € 813 |
| 29 € 813 | 30 € 813 |
|||||
| M | T | W | T | F | S | S |
|---|---|---|---|---|---|---|
| 1 € 949 | 2 € 949 | 3 € 949 | 4 € 949 | 5 € 949 |
||
| 6 € 949 | 7 € 949 | 8 € 949 | 9 € 949 | 10 € 949 | 11 € 949 | 12 € 949 |
| 13 € 949 | 14 € 949 | 15 € 949 | 16 € 949 | 17 € 949 | 18 € 949 | 19 € 949 |
| 20 € 949 | 21 € 949 | 22 € 949 | 23 € 949 | 24 € 949 | 25 € 949 | 26 € 949 |
| 27 € 949 | 28 € 949 | 29 € 949 | 30 € 949 | 31 € 949 |
||
| M | T | W | T | F | S | S |
|---|---|---|---|---|---|---|
| 1 € 1,019 | 2 € 1,019 |
|||||
| 3 € 1,019 | 4 € 1,019 | 5 € 1,019 | 6 € 1,019 | 7 € 1,019 | 8 € 1,019 | 9 € 1,019 |
| 10 € 1,019 | 11 € 1,019 | 12 € 1,019 | 13 € 1,019 | 14 € 1,019 | 15 € 1,019 | 16 € 1,019 |
| 17 € 1,019 | 18 € 1,019 | 19 € 1,019 | 20 € 1,019 | 21 € 1,019 | 22 € 1,019 | 23 € 1,019 |
| 24 € 1,019 | 25 € 1,019 | 26 € 1,019 | 27 € 1,019 | 28 € 1,019 | 29 € 1,019 | 30 € 1,019 |
| 31 € 1,019 |
||||||
| M | T | W | T | F | S | S |
|---|---|---|---|---|---|---|
| 1 € 812 | 2 € 812 | 3 € 812 | 4 € 812 | 5 € 812 | 6 € 812 |
|
| 7 € 812 | 8 € 812 | 9 € 812 | 10 € 812 | 11 € 812 | 12 € 812 | 13 € 812 |
| 14 € 812 | 15 € 812 | 16 € 812 | 17 € 812 | 18 € 812 | 19 € 812 | 20 € 812 |
| 21 € 812 | 22 € 812 | 23 € 812 | 24 € 812 | 25 € 812 | 26 € 812 | 27 € 812 |
| 28 € 812 | 29 € 812 | 30 € 812 |
||||
| M | T | W | T | F | S | S |
|---|---|---|---|---|---|---|
| 1 € 674 | 2 € 674 | 3 € 674 | 4 € 674 |
|||
| 5 € 674 | 6 € 674 | 7 € 674 | 8 € 674 | 9 € 674 | 10 € 674 | 11 € 674 |
| 12 € 674 | 13 € 674 | 14 € 674 | 15 € 674 | 16 € 674 | 17 € 674 | 18 € 674 |
| 19 € 674 | 20 € 674 | 21 € 674 | 22 € 674 | 23 € 674 | 24 € 674 | 25 € 674 |
| 26 € 674 | 27 € 674 | 28 € 674 | 29 € 674 | 30 € 674 | 31 € 674 |
|
| M | T | W | T | F | S | S |
|---|---|---|---|---|---|---|
| 1 € 537 |
||||||
| 2 € 537 | 3 € 537 | 4 € 537 | 5 € 537 | 6 € 537 | 7 € 537 | 8 € 537 |
| 9 € 537 | 10 € 537 | 11 € 537 | 12 € 537 | 13 € 537 | 14 € 537 | 15 € 537 |
| 16 € 537 | 17 € 537 | 18 € 537 | 19 € 537 | 20 € 537 | 21 € 537 | 22 € 537 |
| 23 € 537 | 24 € 537 | 25 € 537 | 26 € 537 | 27 € 537 | 28 € 537 | 29 € 537 |
| 30 € 537 |
||||||
| M | T | W | T | F | S | S |
|---|---|---|---|---|---|---|
| 1 € 537 | 2 € 537 | 3 € 537 | 4 € 537 | 5 € 537 | 6 € 537 |
|
| 7 € 537 | 8 € 537 | 9 € 537 | 10 € 537 | 11 € 537 | 12 € 537 | 13 € 537 |
| 14 € 537 | 15 € 537 | 16 € 537 | 17 € 537 | 18 € 537 | 19 € 537 | 20 € 537 |
| 21 € 674 | 22 € 674 | 23 € 674 | 24 € 674 | 25 € 674 | 26 € 674 | 27 € 674 |
| 28 € 674 | 29 € 674 | 30 € 674 | 31 € 674 |
|||
| M | T | W | T | F | S | S |
|---|---|---|---|---|---|---|
| 1 € 674 | 2 € 674 | 3 € 674 |
||||
| 4 € 674 | 5 € 674 | 6 € 674 | 7 € 674 | 8 € 674 | 9 € 674 | 10 € 674 |
| 11 € 597 | 12 € 597 | 13 € 597 | 14 € 597 | 15 € 597 | 16 € 597 | 17 € 597 |
| 18 € 597 | 19 € 597 | 20 € 597 | 21 € 597 | 22 € 597 | 23 € 597 | 24 € 597 |
| 25 € 597 | 26 € 597 | 27 € 597 | 28 € 597 | 29 € 597 | 30 € 597 | 31 € 597 |
| M | T | W | T | F | S | S |
|---|---|---|---|---|---|---|
| 1 € 597 | 2 € 597 | 3 € 597 | 4 € 597 | 5 € 597 | 6 € 597 | 7 € 597 |
| 8 € 597 | 9 € 597 | 10 € 597 | 11 € 597 | 12 € 597 | 13 € 597 | 14 € 597 |
| 15 € 597 | 16 € 597 | 17 € 597 | 18 € 597 | 19 € 597 | 20 € 597 | 21 € 597 |
| 22 € 597 | 23 € 597 | 24 € 597 | 25 € 597 | 26 € 597 | 27 € 597 | 28 € 597 |
| M | T | W | T | F | S | S |
|---|---|---|---|---|---|---|
| 1 € 597 | 2 € 597 | 3 € 597 | 4 € 597 | 5 € 597 | 6 € 597 | 7 € 597 |
| 8 € 597 | 9 € 597 | 10 € 597 | 11 € 597 | 12 € 597 | 13 € 597 | 14 € 597 |
| 15 € 597 | 16 € 597 | 17 € 597 | 18 € 597 | 19 € 597 | 20 € 597 | 21 € 597 |
| 22 € 597 | 23 € 597 | 24 € 597 | 25 € 597 | 26 € 597 | 27 € 597 | 28 € 597 |
| 29 € 597 | 30 € 597 | 31 € 597 |
||||
| M | T | W | T | F | S | S |
|---|---|---|---|---|---|---|
| 1 € 750 | 2 € 750 | 3 € 750 | 4 € 750 |
|||
| 5 € 750 | 6 € 750 | 7 € 750 | 8 € 750 | 9 € 750 | 10 € 750 | 11 € 750 |
| 12 € 750 | 13 € 750 | 14 € 750 | 15 € 750 | 16 € 750 | 17 € 750 | 18 € 750 |
| 19 € 750 | 20 € 750 | 21 € 750 | 22 € 750 | 23 € 750 | 24 € 750 | 25 € 750 |
| 26 € 750 | 27 € 750 | 28 € 750 | 29 € 750 | 30 € 750 |
||
| M | T | W | T | F | S | S |
|---|---|---|---|---|---|---|
| 1 € 750 | 2 € 750 |
|||||
| 3 € 750 | 4 € 750 | 5 € 750 | 6 € 750 | 7 € 750 | 8 € 750 | 9 € 750 |
| 10 € 750 | 11 € 750 | 12 € 750 | 13 € 750 | 14 € 750 | 15 € 750 | 16 € 750 |
| 17 € 750 | 18 € 750 | 19 € 750 | 20 € 750 | 21 € 750 | 22 € 750 | 23 € 750 |
| 24 € 750 | 25 € 750 | 26 € 750 | 27 € 750 | 28 € 750 | 29 € 750 | 30 € 750 |
| 31 € 750 |
||||||
| M | T | W | T | F | S | S |
|---|---|---|---|---|---|---|
| 1 € 903 | 2 € 903 | 3 € 903 | 4 € 903 | 5 € 903 | 6 € 903 |
|
| 7 € 903 | 8 € 903 | 9 € 903 | 10 € 903 | 11 € 903 | 12 € 903 | 13 € 903 |
| 14 € 903 | 15 € 903 | 16 € 903 | 17 € 903 | 18 € 903 | 19 € 903 | 20 € 903 |
| 21 € 903 | 22 € 903 | 23 € 903 | 24 € 903 | 25 € 903 | 26 € 903 | 27 € 903 |
| 28 € 903 | 29 € 903 | 30 € 903 |
||||
| M | T | W | T | F | S | S |
|---|---|---|---|---|---|---|
| 1 € 1,056 | 2 € 1,056 | 3 € 1,056 | 4 € 1,056 |
|||
| 5 € 1,056 | 6 € 1,056 | 7 € 1,056 | 8 € 1,056 | 9 € 1,056 | 10 € 1,056 | 11 € 1,056 |
| 12 € 1,056 | 13 € 1,056 | 14 € 1,056 | 15 € 1,056 | 16 € 1,056 | 17 € 1,056 | 18 € 1,056 |
| 19 € 1,056 | 20 € 1,056 | 21 € 1,056 | 22 € 1,056 | 23 € 1,056 | 24 € 1,056 | 25 € 1,056 |
| 26 € 1,056 | 27 € 1,056 | 28 € 1,056 | 29 € 1,056 | 30 € 1,056 | 31 € 1,056 |
|
| M | T | W | T | F | S | S |
|---|---|---|---|---|---|---|
| 1 € 903 |
||||||
| 2 € 903 | 3 € 903 | 4 € 903 | 5 € 903 | 6 € 903 | 7 € 903 | 8 € 903 |
| 9 € 903 | 10 € 903 | 11 € 903 | 12 € 903 | 13 € 903 | 14 € 903 | 15 € 903 |
| 16 € 903 | 17 € 903 | 18 € 903 | 19 € 903 | 20 € 903 | 21 € 903 | 22 € 903 |
| 23 € 903 | 24 € 903 | 25 € 903 | 26 € 903 | 27 € 903 | 28 € 903 | 29 € 903 |
| 30 € 903 | 31 € 903 |
|||||
| M | T | W | T | F | S | S |
|---|---|---|---|---|---|---|
| 1 € 903 | 2 € 903 | 3 € 903 | 4 € 903 | 5 € 903 |
||
| 6 € 903 | 7 € 903 | 8 € 903 | 9 € 903 | 10 € 903 | 11 € 903 | 12 € 903 |
| 13 € 903 | 14 € 903 | 15 € 903 | 16 € 903 | 17 € 903 | 18 € 903 | 19 € 903 |
| 20 € 903 | 21 € 903 | 22 € 903 | 23 € 903 | 24 € 903 | 25 € 903 | 26 € 903 |
| 27 € 903 | 28 € 903 | 29 € 903 | 30 € 903 |
|||
| M | T | W | T | F | S | S |
|---|---|---|---|---|---|---|
| 1 € 750 | 2 € 750 | 3 € 750 |
||||
| 4 € 750 | 5 € 750 | 6 € 750 | 7 € 750 | 8 € 750 | 9 € 750 | 10 € 750 |
| 11 € 750 | 12 € 750 | 13 € 750 | 14 € 750 | 15 € 750 | 16 € 750 | 17 € 750 |
| 18 € 750 | 19 € 750 | 20 € 750 | 21 € 750 | 22 € 750 | 23 € 750 | 24 € 750 |
| 25 € 750 | 26 € 750 | 27 € 750 | 28 € 750 | 29 € 750 | 30 € 750 | 31 € 750 |
| M | T | W | T | F | S | S |
|---|---|---|---|---|---|---|
| 1 € 597 | 2 € 597 | 3 € 597 | 4 € 597 | 5 € 597 | 6 € 597 | 7 € 597 |
| 8 € 597 | 9 € 597 | 10 € 597 | 11 € 597 | 12 € 597 | 13 € 597 | 14 € 597 |
| 15 € 597 | 16 € 597 | 17 € 597 | 18 € 597 | 19 € 597 | 20 € 597 | 21 € 597 |
| 22 € 597 | 23 € 597 | 24 € 597 | 25 € 597 | 26 € 597 | 27 € 597 | 28 € 597 |
| 29 € 597 | 30 € 597 |
|||||
| M | T | W | T | F | S | S |
|---|---|---|---|---|---|---|
| 1 € 630 | 2 € 630 | 3 € 630 | 4 € 630 | 5 € 630 |
||
| 6 € 630 | 7 € 630 | 8 € 630 | 9 € 630 | 10 € 630 | 11 € 630 | 12 € 630 |
| 13 € 630 | 14 € 630 | 15 € 630 | 16 € 630 | 17 € 630 | 18 € 630 | 19 € 630 |
| 20 € 630 | 21 € 630 | 22 € 630 | 23 € 630 | 24 € 630 | 25 € 630 | 26 € 630 |
| 27 € 630 | 28 € 630 | 29 € 630 | 30 € 630 | 31 € 630 |
||
| M | T | W | T | F | S | S |
|---|---|---|---|---|---|---|
| 1 € 630 | 2 € 630 |
|||||
| 3 € 630 | 4 € 630 | 5 € 630 | 6 € 630 | 7 € 630 | 8 € 630 | 9 € 630 |
| 10 € 630 | 11 € 630 | 12 € 630 | 13 € 630 | 14 € 630 | 15 € 630 | 16 € 630 |
| 17 € 630 | 18 € 630 | 19 € 630 | 20 € 630 | 21 € 630 | 22 € 630 | 23 € 630 |
| 24 € 630 | 25 € 630 | 26 € 630 | 27 € 630 | 28 € 630 | 29 € 630 | 30 € 630 |
| 31 € 630 |
||||||
| M | T | W | T | F | S | S |
|---|---|---|---|---|---|---|
| 1 € 630 | 2 € 630 | 3 € 630 | 4 € 630 | 5 € 630 | 6 € 630 |
|
| 7 € 630 | 8 € 630 | 9 € 630 | 10 € 630 | 11 € 630 | 12 € 630 | 13 € 630 |
| 14 € 630 | 15 € 630 | 16 € 630 | 17 € 630 | 18 € 630 | 19 € 630 | 20 € 630 |
| 21 € 630 | 22 € 630 | 23 € 630 | 24 € 630 | 25 € 630 | 26 € 630 | 27 € 630 |
| 28 € 630 | 29 € 630 |
|||||
| M | T | W | T | F | S | S |
|---|---|---|---|---|---|---|
| 1 € 630 | 2 € 630 | 3 € 630 | 4 € 630 | 5 € 630 |
||
| 6 € 630 | 7 € 630 | 8 € 630 | 9 € 630 | 10 € 630 | 11 € 630 | 12 € 630 |
| 13 € 630 | 14 € 630 | 15 € 630 | 16 € 630 | 17 € 630 | 18 € 630 | 19 € 630 |
| 20 € 630 | 21 € 630 | 22 € 630 | 23 € 630 | 24 € 630 | 25 € 630 | 26 € 630 |
| 27 € 630 | 28 € 630 | 29 € 630 | 30 € 630 | 31 € 630 |
||